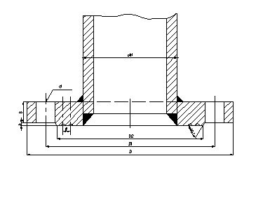
各种规格法兰尺寸标准
|
公称直径 |
管子外径 (法兰内径) |
法 兰 盘 |
焊 接 |
螺 栓 |
||||||||||||||
|
管子外径和法兰盘内径之间最大距离 |
法兰盘外径和公差 |
螺栓中心距直径和公差 |
连接凸缘 |
密封表面 |
法兰盘厚度及公差 |
螺栓孔直径及公差 |
法兰盘重量(Kg) |
焊缝高度 |
管壁最小厚度 |
法兰盘管端距离 |
数量 |
螺纹 |
长度 |
|||||
|
直径 |
高度 |
沟纹间的距离 |
沟纹宽度 |
沟纹数 |
||||||||||||||
|
Dg |
dh |
|
D |
D1 |
D2 |
h |
g |
g1 |
|
B |
d |
Q |
K |
S |
H |
n |
|
e |
|
10 |
14 |
0.43 |
90+0.87 |
60+0.74 |
40 |
2 |
4 |
1 |
2 |
12+0.43 |
14+0.43 |
0.46 |
3 |
3 |
4 |
4 |
M12 |
45 |
|
15 |
18 |
0.52 |
95+0.87 |
65+0.74 |
45 |
2 |
4 |
1 |
2 |
12+0.43 |
14+0.43 |
0.61 |
3 |
3 |
4 |
4 |
M12 |
45 |
|
20 |
25 |
0.52 |
105+0.87 |
75+0.74 |
58 |
2 |
4 |
1 |
2 |
14+0.43 |
14+0.43 |
0.75 |
3 |
3 |
4 |
4 |
M12 |
45 |
|
25 |
32 |
0.62 |
115+0.87 |
85+0.87 |
68 |
2 |
4 |
1 |
2 |
14+0.43 |
14+0.43 |
0.89 |
4 |
3.5 |
5 |
4 |
M12 |
45 |
|
32 |
38 |
0.62 |
135+1.0 |
100+0.87 |
78 |
2 |
4 |
1 |
2 |
16+0.43 |
18+0.52 |
1.40 |
4 |
3.5 |
5 |
4 |
M16 |
55 |
|
40 |
45 |
0.62 |
145+1.0 |
110+0.89 |
88 |
3 |
4 |
1 |
2 |
18+0.52 |
18+0.52 |
1.71 |
4 |
3.5 |
5 |
4 |
M16 |
60 |
|
50 |
57 |
0.74 |
160+1.0 |
125+1.0 |
102 |
3 |
4 |
1 |
2 |
18+0.52 |
18+0.52 |
2.09 |
4 |
3.5 |
5 |
4 |
M16 |
60 |
|
70 |
76 |
0.74 |
180+1.15 |
145+1.0 |
122 |
3 |
4 |
1 |
2 |
20+0.52 |
18+0.52 |
2.84 |
5 |
4 |
6 |
4 |
M16 |
65 |
|
80 |
89 |
0.87 |
195+1.15 |
160+1.0 |
138 |
3 |
5 |
1 |
3 |
20+0.52 |
18+0.52 |
3.24 |
5 |
4 |
6 |
4 |
M16 |
65 |
|
100 |
108 |
0.87 |
215+1.15 |
180+1.15 |
158 |
3 |
5 |
1 |
3 |
22+0.52 |
18+0.52 |
4.01 |
5 |
4 |
6 |
8 |
M16 |
70 |
|
125 |
133 |
1.0 |
245+1.15 |
210+1.15 |
188 |
3 |
5 |
1 |
3 |
24+0.52 |
18+0.52 |
5.40 |
5 |
4 |
6 |
8 |
M16 |
70 |
|
150 |
159 |
1.0 |
280+1.35 |
240+1.15 |
212 |
3 |
5 |
1 |
3 |
24+0.52 |
23+0.52 |
6.12 |
5 |
4.5 |
6 |
8 |
M20 |
75 |
|
200 |
219 |
1.0 |
335+1.35 |
295+1.35 |
268 |
3 |
5 |
1 |
3 |
24+0.52 |
23+0.52 |
8.24 |
7 |
6 |
8 |
8 |
M20 |
75 |
|
250 |
273 |
1.0 |
390+1.55 |
350+1.35 |
320 |
3 |
5 |
1 |
3 |
26+0.52 |
23+0.52 |
10.7 |
9 |
8 |
10 |
12 |
M20 |
80 |
|
300 |
325 |
1.0 |
440+1.55 |
400+1.55 |
370 |
4 |
5 |
1 |
3 |
28+0.52 |
23+0.52 |
12.9 |
9 |
8 |
10 |
12 |
M20 |
90 |
|
350 |
377 |
1.0 |
500+1.8 |
460+1.55 |
430 |
4 |
5 |
1 |
3 |
28+0.52 |
23+0.52 |
15.7 |
10 |
9 |
11 |
16 |
M20 |
90 |
|
400 |
426 |
1.0 |
565+1.8 |
515+1.8 |
482 |
4 |
5 |
1 |
3 |
30+0.62 |
25+0.52 |
21.8 |
10 |
9 |
11 |
16 |
M22 |
90 |
|
450 |
478 |
2.0 |
615+1.8 |
565+1.8 |
532 |
4 |
5 |
1 |
3 |
30+0.6 |
25+0.52 |
24.4 |
10 |
9 |
11 |
20 |
M22 |
90 |
|
500 |
529 |
2.0 |
670+2.0 |
620+1.8 |
585 |
4 |
5 |
1 |
3 |
32+0.62 |
25+0.52 |
27.7 |
10 |
9 |
11 |
20 |
M22 |
100 |
|
600 |
630 |
2.0 |
780+2.0 |
725+1.8 |
685 |
5 |
5 |
1 |
3 |
36+0.62 |
30+0.52 |
39.4 |
10 |
9 |
11 |
20 |
M27 |
100 |
焊接平式钢制法兰盘标准尺寸表(Pg=10Kg/cm2)
单位(mm)

焊接平式钢制法兰盘标准尺寸表(Pg=1Kg/cm2)
|
管子公称直径 |
管子外径 (法兰内径) |
法 兰 盘 |
法兰重量
|
|||||||||
|
管子外径和法兰盘内径之间最大距离 |
螺栓中心距直径和公差 |
法兰盘外径和公差 |
法兰盘厚度及公差 |
螺栓孔 |
螺栓直径及公差 |
焊接缝隙 |
焊缝高度
|
|||||
|
孔径 |
螺栓数量 |
|||||||||||
|
Dg |
d0 |
e |
D1 |
D |
b |
d |
|
|
H |
K1 |
K2 |
(Kg) |
|
200 |
219 |
1 |
295 |
335 |
18 |
23 |
8 |
M20 |
8 |
6 |
8 |
6.7 |
|
258 |
273 |
1 |
350 |
390 |
20 |
23 |
12 |
M20 |
8 |
6 |
8 |
8.2 |
|
300 |
325 |
1 |
395 |
435 |
20 |
23 |
12 |
M20 |
8 |
6 |
10 |
9.3 |
|
350 |
377 |
1.5 |
445 |
485 |
20 |
23 |
12 |
M20 |
8 |
6 |
10 |
9.9 |
|
400 |
426 |
1.5 |
495 |
535 |
20 |
23 |
16 |
M20 |
8 |
6 |
10 |
11.2 |
|
450 |
478 |
1.5 |
550 |
590 |
20 |
23 |
16 |
M20 |
8 |
6 |
10 |
13 |
|
500 |
529 |
1.5 |
600 |
640 |
20 |
23 |
16 |
M20 |
8 |
6 |
10 |
14.1 |
|
600 |
630 |
1.5 |
705 |
755 |
20 |
25 |
20 |
M22 |
8 |
6 |
10 |
18.9 |
|
700 |
720 |
1.5 |
810 |
860 |
20 |
25 |
24 |
M27 |
8 |
6 |
10 |
24.4 |
|
800 |
820 |
2 |
920 |
975 |
20 |
30 |
24 |
M27 |
8 |
6 |
10 |
30.4 |
|
900 |
920 |
2 |
1020 |
1075 |
20 |
30 |
24 |
M27 |
10 |
8 |
10 |
34 |
|
1000 |
1020 |
2 |
1120 |
1175 |
20 |
30 |
28 |
M27 |
10 |
8 |
10 |
37.2 |
|
1100 |
1120 |
2 |
1220 |
1280 |
24 |
30 |
32 |
M27 |
10 |
8 |
10 |
53.8 |
|
1200 |
1220 |
2 |
1340 |
1400 |
24 |
34 |
32 |
M30 |
10 |
8 |
10 |
61.4 |
|
1300 |
1320 |
2.5 |
1440 |
1500 |
24 |
34 |
32 |
M30 |
10 |
8 |
10 |
66.4 |
|
1400 |
1420 |
2.5 |
1560 |
1620 |
24 |
34 |
36 |
M30 |
10 |
8 |
12 |
80.4 |
|
1500 |
1520 |
2.5 |
1660 |
1720 |
24 |
34 |
36 |
M30 |
10 |
8 |
12 |
86 |
|
1600 |
1620 |
2.5 |
1760 |
1820 |
24 |
34 |
40 |
M30 |
10 |
8 |
12 |
91 |
|
1800 |
1820 |
2.5 |
1970 |
2045 |
24 |
41 |
44 |
M36 |
10 |
8 |
12 |
113 |
|
2000 |
2020 |
2.5 |
2180 |
2265 |
28 |
48 |
48 |
M42 |
10 |
8 |
12 |
156 |
|
2200 |
2220 |
2.5 |
2390 |
2475 |
28 |
48 |
52 |
M42 |
10 |
8 |
12 |
176 |
|
2400 |
2420 |
2.5 |
2600 |
2685 |
28 |
48 |
56 |
M42 |
10 |
8 |
12 |
204 |
单位(mm)图号:1B503-3

焊接平式钢制法兰盘标准尺寸表(Pg=6Kg/cm2)
单位(mm)
|
公称直径 |
管子外径 (法兰内径) |
法 兰 盘 |
焊 接 |
螺 栓 |
||||||||||||||
|
管子外径和法兰盘内径之间最大距离 |
法兰盘外径和公差 |
螺栓中心距直径和公差 |
连接凸缘 |
密封表面 |
法兰盘厚度及公差 |
螺栓孔直径及公差 |
法兰盘重量(Kg) |
焊缝高度 |
管壁最小厚度 |
法兰盘管端距离 |
数量 |
螺纹 |
长度 |
|||||
|
直径 |
高度 |
沟纹间的距离 |
沟纹宽度 |
沟纹数 |
||||||||||||||
|
Dg |
dh |
|
D |
D1 |
D2 |
h |
g |
g1 |
|
B |
d |
Q |
K |
S |
H |
n |
|
e |
|
10 |
14 |
0.43 |
75+0.74 |
50+0.74 |
35 |
2 |
4 |
1 |
2 |
12+0.43 |
12+0.43 |
0.31 |
3 |
3 |
4 |
4 |
M10 |
40 |
|
15 |
18 |
0.52 |
80+0.87 |
55+0.74 |
40 |
2 |
4 |
1 |
2 |
12+0.43 |
12+0.43 |
0.34 |
3 |
3 |
4 |
4 |
M10 |
40 |
|
20 |
25 |
0.52 |
90+0.97 |
65+0.74 |
50 |
2 |
4 |
1 |
2 |
14+0.43 |
12+0.43 |
0.54 |
3 |
3 |
4 |
4 |
M10 |
45 |
|
25 |
32 |
0.62 |
100+0.87 |
75+0.74 |
60 |
2 |
4 |
1 |
2 |
14+0.43 |
12+0.43 |
0.64 |
4 |
3.5 |
5 |
4 |
M10 |
45 |
|
32 |
38 |
0.62 |
120+1.0 |
90+0.87 |
70 |
2 |
4 |
1 |
2 |
16+0.43 |
14+0.43 |
1.10 |
4 |
3.5 |
5 |
4 |
M12 |
50 |
|
40 |
45 |
0.62 |
130+1.0 |
100+0.87 |
80 |
3 |
4 |
1 |
2 |
16+0.43 |
14+0.43 |
1.22 |
4 |
3.5 |
5 |
4 |
M12 |
50 |
|
50 |
57 |
0.74 |
140+1.0 |
110+0.87 |
90 |
3 |
4 |
1 |
2 |
16+0.43 |
14+0.43 |
1.35 |
4 |
3.5 |
5 |
4 |
M12 |
50 |
|
70 |
76 |
0.74 |
160+1.0 |
130+1.0 |
110 |
3 |
4 |
1 |
2 |
16+0.43 |
14+0.43 |
1.67 |
5 |
4 |
6 |
4 |
M12 |
50 |
|
80 |
89 |
0.87 |
185+1.10 |
150+1.0 |
128 |
3 |
5 |
1 |
3 |
18+0.52 |
18+0.52 |
2.48 |
5 |
4 |
6 |
4 |
M16 |
60 |
|
100 |
108 |
0.87 |
205+1.15 |
170+1.0 |
148 |
3 |
5 |
1 |
3 |
18+0.52 |
18+0.52 |
2.89 |
5 |
4 |
6 |
4 |
M16 |
60 |
|
125 |
133 |
1.0 |
235+1.15 |
200+1.15 |
178 |
3 |
5 |
1 |
3 |
20+0.52 |
18+0.52 |
3.94 |
5 |
4 |
6 |
8 |
M16 |
65 |
|
160 |
159 |
1.0 |
260+1.35 |
225+1.15 |
202 |
3 |
5 |
1 |
3 |
20+0.52 |
18+0.52 |
4.47 |
5 |
4.5 |
6 |
8 |
M16 |
65 |
|
200 |
219 |
1.0 |
315+1.35 |
280+1.35 |
258 |
3 |
5 |
1 |
3 |
22+0.52 |
18+0.52 |
8.07 |
7 |
6 |
8 |
8 |
M16 |
70 |
|
250 |
273 |
1.0 |
370+1.55 |
335+1.35 |
312 |
3 |
5 |
1 |
3 |
24+0.52 |
18+0.52 |
8.03 |
9 |
8 |
10 |
12 |
M16 |
70 |
|
300 |
325 |
1.0 |
435+1.65 |
395+1.55 |
365 |
4 |
5 |
1 |
3 |
24+0.52 |
23+0.52 |
10.3 |
9 |
8 |
10 |
12 |
M20 |
75 |
|
350 |
379 |
1.0 |
485+1.59 |
445+1.55 |
415 |
4 |
5 |
1 |
3 |
26+0.52 |
23+0.52 |
12.6 |
10 |
9 |
11 |
12 |
M20 |
80 |
|
400 |
426 |
1.0 |
535+1.8 |
495+1.55 |
465 |
4 |
5 |
1 |
3 |
28+0.52 |
23+0.52 |
15.2 |
10 |
9 |
11 |
16 |
M20 |
90 |
|
450 |
478 |
2.0 |
590+1.8 |
550+1.8 |
520 |
4 |
5 |
1 |
3 |
28+0.52 |
23+0.52 |
17.6 |
10 |
9 |
11 |
16 |
M20 |
90 |
|
500 |
529 |
2.0 |
640+2.0 |
600+1.8 |
570 |
4 |
5 |
1 |
3 |
30+0.52 |
23+0.52 |
20.7 |
10 |
9 |
11 |
16 |
M20 |
90 |
|
600 |
630 |
2.0 |
755+2.0 |
705+2.0 |
670 |
5 |
5 |
1 |
3 |
30+0.62 |
25+0.52 |
26.6 |
10 |
9 |
11 |
20 |
M22 |
90 |
|
700 |
720 |
2.0 |
860+2.2 |
810+2.2 |
775 |
5 |
6 |
1.5 |
3 |
32+0.62 |
25+0.52 |
37.1 |
10 |
9 |
11 |
24 |
M22 |
100 |
|
800 |
820 |
2.0 |
975+2.2 |
920+2.2 |
880 |
5 |
6 |
1.5 |
3 |
32+0.62 |
30+0.62 |
46.2 |
10 |
9 |
11 |
24 |
M27 |
100 |
|
900 |
920 |
2.0 |
1075+2.4 |
1020+2.4 |
980 |
5 |
6 |
1.5 |
3 |
34+0.62 |
30+0.62 |
55.1 |
10 |
9 |
11 |
24 |
M27 |
110 |
|
1000 |
1020 |
2.0 |
1175+2.4 |
1120+2.4 |
1080 |
5 |
6 |
1.5 |
3 |
36+0.62 |
30+0.62 |
57.3 |
10 |
9 |
11 |
28 |
M27 |
110 |

焊接平式钢制法兰盘标准尺寸表(Pg=16Kg/cm2)
单位(mm)图号:1标2001
|
公称直径 |
管子外径 (法兰内径) |
法 兰 盘 |
焊 接 |
螺 栓 |
||||||||||||||
|
管子外径和法兰盘内径之间最大距离 |
法兰盘外径和公差 |
螺栓中心距直径和公差 |
连接凸缘 |
密封表面 |
法兰盘厚度及公差 |
螺栓孔直径及公差 |
法兰盘重量(Kg) |
焊缝高度 |
管壁最小厚度 |
法兰盘管端距离 |
数量 |
螺纹 |
长度 |
|||||
|
直径 |
高度 |
沟纹间的距离 |
沟纹宽度 |
沟纹数 |
||||||||||||||
|
Dg |
dh |
|
D |
D1 |
D2 |
h |
g |
g1 |
|
B |
d |
Q |
K |
S |
H |
n |
|
e |
|
10 |
14 |
0.43 |
90+0.87 |
60+0.74 |
40 |
2 |
4 |
1 |
2 |
14+0.43 |
14+0.43 |
0.55 |
3 |
3 |
4 |
4 |
M12 |
45 |
|
15 |
18 |
0.52 |
95+0.87 |
65+0.74 |
45 |
2 |
4 |
1 |
2 |
14+0.43 |
14+0.43 |
0.71 |
3 |
3 |
4 |
4 |
M12 |
45 |
|
20 |
25 |
0.52 |
105+0.87 |
75+0.74 |
58 |
2 |
4 |
1 |
2 |
16+0.43 |
14+0.43 |
0.87 |
3 |
3 |
4 |
4 |
M12 |
50 |
|
25 |
32 |
0.62 |
115+0.87 |
85+0.87 |
68 |
2 |
4 |
1 |
2 |
18+0.52 |
14+0.43 |
1.17 |
4 |
3.5 |
5 |
4 |
M12 |
55 |
|
32 |
38 |
0.62 |
135+1.0 |
100+0.87 |
78 |
2 |
5 |
1 |
3 |
18+0.52 |
18+0.52 |
1.60 |
4 |
3.5 |
5 |
4 |
M16 |
60 |
|
40 |
45 |
0.62 |
145+1.0 |
110+0.89 |
88 |
3 |
5 |
1 |
3 |
20+0.52 |
18+0.52 |
2.00 |
4 |
3.5 |
5 |
4 |
M16 |
65 |
|
50 |
57 |
0.74 |
160+1.0 |
125+1.0 |
102 |
3 |
5 |
1 |
3 |
22+0.52 |
18+0.52 |
2.61 |
4 |
3.5 |
5 |
4 |
M16 |
70 |
|
70 |
76 |
0.74 |
180+1.15 |
145+1.0 |
122 |
3 |
5 |
1 |
3 |
24+0.52 |
18+0.52 |
3.45 |
5 |
4 |
6 |
4 |
M16 |
70 |
|
80 |
89 |
0.87 |
195+1.15 |
160+1.0 |
138 |
3 |
5 |
1 |
3 |
24+0.52 |
18+0.52 |
3.71 |
5 |
4 |
6 |
8 |
M16 |
70 |
|
100 |
108 |
0.87 |
215+1.15 |
180+1.15 |
158 |
3 |
5 |
1 |
3 |
26+0.52 |
18+0.52 |
4.8 |
5 |
4 |
6 |
8 |
M16 |
75 |
|
125 |
133 |
1.0 |
245+1.15 |
210+1.15 |
188 |
3 |
5 |
1 |
3 |
28+0.52 |
18+0.52 |
6.47 |
5 |
4 |
6 |
8 |
M16 |
80 |
|
150 |
159 |
1.0 |
280+1.35 |
240+1.15 |
212 |
3 |
5 |
1 |
3 |
28+0.52 |
23+0.52 |
7.92 |
5 |
4.5 |
6 |
8 |
M20 |
90 |
|
200 |
219 |
1.0 |
335+1.35 |
295+1.35 |
268 |
3 |
5 |
1 |
3 |
30+0.62 |
23+0.52 |
10.1 |
7 |
6 |
8 |
12 |
M20 |
90 |
|
250 |
273 |
1.0 |
405+1.55 |
355+1.35 |
320 |
3 |
5 |
1 |
3 |
32+0.62 |
25+0.52 |
15.7 |
9 |
8 |
10 |
12 |
M22 |
100 |
|
300 |
325 |
1.0 |
460+1.55 |
410+1.59 |
378 |
4 |
6 |
1.5 |
3 |
32+0.62 |
25+0.62 |
18.1 |
9 |
8 |
10 |
12 |
M22 |
100 |
|
350 |
379 |
1.0 |
520+1.8 |
470+1.56 |
438 |
4 |
6 |
1.5 |
3 |
34+0.62 |
25+0.52 |
23.3 |
10 |
9 |
11 |
12 |
M22 |
100 |
|
400 |
426 |
1.0 |
580+1.8 |
525+1.8 |
490 |
4 |
6 |
1.5 |
3 |
38+0.62 |
30+0.52 |
31.0 |
10 |
9 |
11 |
16 |
M27 |
110 |
|
450 |
478 |
2.0 |
640+2.0 |
585+1.8 |
550 |
4 |
6 |
1.5 |
3 |
42+0.62 |
30+0.62 |
40.2 |
10 |
9 |
11 |
20 |
M27 |
120 |
|
500 |
529 |
2.0 |
705+2.0 |
650+2.0 |
610 |
4 |
6 |
1.5 |
3 |
48+0.62 |
34+0.62 |
55.1 |
10 |
9 |
11 |
20 |
M30 |
140 |
|
600 |
630 |
2.0 |
840+2.2 |
710+2.0 |
720 |
5 |
6 |
1.5 |
4 |
50+0.62 |
41+0.62 |
80.3 |
10 |
9 |
11 |
22 |
M36 |
150 |

焊接平式钢制法兰盘标准尺寸表(Pg=25Kg/cm2)
单位(mm)图号:1标3795
|
公称直径 |
连管的突出长度 |
连接管 |
法兰盘 |
加强环 |
焊接 |
螺栓 |
重量(Kg) |
||||||||||||||||||
|
连管的直径 |
壁厚 |
当R=350时高度 |
法兰盘突出部分连管端部的距离 |
外径 |
螺栓圆周直径 |
密封面直径 |
法兰盘的厚度 |
螺栓孔的直径 |
外径 |
设备壁之厚度 |
数量 |
直径 |
环m=10mm |
管子长100mm |
法兰盘 |
||||||||||
|
8 |
10 |
12 |
14 |
16 |
18 |
20 |
22 |
||||||||||||||||||
|
Dg |
h |
d |
s |
a |
n |
D |
K |
g |
L |
e |
D1 |
环的厚度 |
|||||||||||||
|
10 |
100 |
14 |
3 |
1 |
4 |
90 |
60 |
40 |
16 |
14 |
|
|
|
|
|
|
|
|
|
3 |
4 |
M12 |
|
0.08 |
0.65 |
|
15 |
100 |
18 |
3 |
1 |
4 |
95 |
65 |
45 |
16 |
14 |
|
|
|
|
|
|
|
|
|
3 |
4 |
M12 |
|
0.11 |
0.73 |
|
20 |
100 |
25 |
3 |
1 |
4 |
105 |
75 |
58 |
18 |
14 |
|
|
|
|
|
|
|
|
|
3 |
4 |
M12 |
|
0.16 |
1.04 |
|
25 |
100 |
32 |
3.5 |
1 |
6 |
115 |
85 |
68 |
18 |
14 |
|
|
|
|
|
|
|
|
|
5 |
4 |
M12 |
|
0.29 |
1.25 |
|
32 |
100 |
38 |
3.5 |
1 |
6 |
140 |
100 |
78 |
18 |
18 |
|
|
|
|
|
|
|
|
|
5 |
4 |
M16 |
|
0.30 |
1.80 |
|
40 |
100 |
44.5 |
3.5 |
1 |
6 |
150 |
110 |
88 |
18 |
18 |
|
|
|
|
|
|
|
|
|
5 |
4 |
M16 |
|
0.35 |
2.00 |
|
50 |
100 |
57 |
4.5 |
1 |
7 |
160 |
125 |
102 |
18 |
18 |
|
|
|
|
|
|
|
|
|
6 |
4 |
M16 |
|
0.38 |
2.20 |
|
70 |
130 |
76 |
6 |
3 |
8 |
185 |
145 |
122 |
22 |
18 |
130 |
8 |
10 |
12 |
14 |
16 |
18 |
20 |
22 |
7 |
8 |
M16 |
0.69 |
1.04 |
3.30 |
|
80 |
130 |
89 |
6 |
3 |
8 |
200 |
160 |
138 |
24 |
18 |
160 |
8 |
10 |
12 |
14 |
16 |
18 |
20 |
22 |
7 |
8 |
M16 |
1.08 |
1.23 |
4.20 |
|
100 |
150 |
108 |
7 |
5 |
8 |
235 |
190 |
162 |
28 |
23 |
170 |
8 |
10 |
12 |
14 |
16 |
18 |
20 |
22 |
7 |
8 |
M20 |
1.50 |
1.74 |
6.60 |
|
125 |
180 |
133 |
7 |
5 |
8 |
290 |
220 |
188 |
30 |
25 |
240 |
8 |
10 |
12 |
14 |
16 |
18 |
20 |
22 |
7 |
8 |
M22 |
2.49 |
2.18 |
8.90 |
|
150 |
180 |
159 |
8 |
9 |
10 |
300 |
250 |
218 |
30 |
25 |
290 |
8 |
10 |
12 |
14 |
16 |
18 |
20 |
22 |
9 |
8 |
M22 |
3.63 |
2.98 |
10.6 |
|
200 |
200 |
219 |
9 |
18 |
11 |
360 |
310 |
298 |
32 |
25 |
400 |
8 |
10 |
12 |
14 |
16 |
18 |
20 |
22 |
10 |
12 |
M22 |
6.95 |
4.66 |
14.2 |
|
250 |
220 |
273 |
9 |
28 |
11 |
425 |
370 |
335 |
34 |
30 |
510 |
8 |
10 |
12 |
14 |
16 |
18 |
20 |
22 |
10 |
12 |
M27 |
11.5 |
5.86 |
19.4 |
|
300 |
220 |
325 |
9 |
40 |
11 |
485 |
430 |
390 |
36 |
30 |
610 |
8 |
10 |
12 |
14 |
16 |
18 |
20 |
22 |
10 |
16 |
M27 |
16.5 |
7.01 |
24.5 |

|
尺寸表 |
|||||||||||||||||||
|
公称直径 |
管子 |
法兰盘 |
双头螺栓 |
||||||||||||||||
|
外径 |
外径与公称 |
内径与公称 |
连接突出部 |
突出部 |
凹入部 |
突出部凹入部 |
法兰盘的厚度与公差 |
高度 |
双头螺栓孔直径与公差 |
颈 |
法兰盘重量Kg |
数量 |
螺纹 |
长度 |
|||||
|
直径 |
高度 |
直径与公差 |
直径与公差 |
突出部的高度 凹入部的深度与公差 |
外径 |
最大直径 |
倒圆半径 |
带突 出部 |
带凹入部 |
||||||||||
|
Dg |
dH |
D |
d1 |
D2 |
h |
D3 |
D4 |
H1 |
L |
h |
d |
Dn |
Dm |
|
Q |
Q |
h |
|
L |
|
10 |
14 |
100+0.87 |
8-0.5 |
50 |
2 |
34-0.34 |
35+0.34 |
4±0.5 |
18+0.52 |
48 |
14+0.43 |
15 |
34 |
4 |
1.05 |
1.0 |
4 |
M12 |
55 |
|
15 |
18 |
105+0.87 |
12-0.5 |
55 |
2 |
39-0.34 |
40+0.34 |
4±0.5 |
18+0.52 |
48 |
14+0.43 |
19 |
38 |
5 |
1.18 |
1.11 |
4 |
M12 |
55 |
|
20 |
25 |
125+1.0 |
18-0.5 |
68 |
2 |
50-0.4 |
51+0.4 |
4±0.5 |
20+0.52 |
56 |
18+0.52 |
26 |
48 |
5 |
1.87 |
1.76 |
4 |
M16 |
65 |
|
25 |
32 |
135+1.0 |
25-0.5 |
78 |
2 |
57-0.4 |
58+0.4 |
4±0.5 |
22+0.52 |
58 |
18+0.52 |
33 |
52 |
5 |
2.36 |
2.22 |
4 |
M16 |
70 |
|
32 |
38 |
150+1.0 |
31-0.5 |
85 |
2 |
65-0.4 |
66+0.4 |
4±0.5 |
24+0.52 |
62 |
23+0.52 |
39 |
64 |
5 |
3.15 |
2.99 |
4 |
M20 |
75 |
|
40 |
45 |
165+1.0 |
37-0.5 |
96 |
3 |
75-0.4 |
76+0.4 |
4±0.5 |
24+0.52 |
68 |
23+0.52 |
46 |
74 |
5 |
3.80 |
3.67 |
4 |
M20 |
75 |
|
50 |
57 |
175+1.0 |
47-0.5 |
106 |
3 |
87-0.46 |
88+0.46 |
4±0.5 |
26+0.52 |
70 |
23+0.52 |
58 |
86 |
5 |
4.76 |
4.5 |
4 |
M20 |
80 |
|
70 |
76 |
200+1.15 |
64-0.5 |
132 |
3 |
109-0.46 |
110+0.46 |
4±0.5 |
28+0.52 |
75 |
23+0.52 |
77 |
106 |
6 |
6.43 |
6.05 |
8 |
M20 |
90 |
|
80 |
89 |
210+1.15 |
77-0.5 |
142 |
3 |
120-0.53 |
121+0.53 |
4±0.5 |
30+0.62 |
75 |
23+0.52 |
90 |
120 |
6 |
7.43 |
7 |
8 |
M20 |
90 |
|
100 |
108 |
250+1.15 |
84-0.5 |
170 |
3 |
149-0.53 |
150+0.53 |
4.5±0.5 |
32+0.62 |
80 |
25+0.52 |
100 |
140 |
6 |
11.3 |
10.5 |
8 |
M20 |
100 |
|
125 |
133 |
295+1.35 |
110-0.5 |
205 |
3 |
175-0.53 |
176+0.53 |
4.5±0.5 |
36+0.62 |
98 |
30+0.62 |
135 |
172 |
8 |
17.5 |
16.6 |
8 |
M27 |
110 |
|
150 |
159 |
340+1.35 |
142-0.5 |
240 |
3 |
203-0.6 |
204+0.6 |
4.5±0.5 |
38+0.62 |
110 |
34+0.62 |
161 |
206 |
8 |
25.3 |
24.1 |
8 |
M30 |
120 |
|
200 |
219 |
405+1.55 |
198-0.5 |
300 |
3 |
259-0.6 |
260+0.6 |
4.5±0.5 |
40+0.62 |
116 |
34+0.62 |
222 |
264 |
10 |
37.5 |
35.9 |
12 |
M30 |
130 |
|
250 |
273 |
470+1.55 |
246-1.0 |
355 |
3 |
312-0.68 |
313+0.68 |
4.5±0.5 |
48+0.62 |
122 |
41+0.62 |
278 |
316 |
10 |
52.4 |
60.3 |
12 |
M36 |
140 |
|
300 |
325 |
530+1.8 |
294-1.0 |
415 |
4 |
363-0.76 |
364+0.76 |
4.5±0.5 |
54+0.74 |
136 |
41+0.62 |
330 |
370 |
12 |
70.8 |
68.3 |
16 |
M36 |
160 |
|
350 |
377 |
595+1.8 |
342-1.0 |
470 |
4 |
421-0.76 |
422+0.76 |
5±0.5 |
60+0.74 |
154 |
41+0.62 |
382 |
430 |
12 |
103.5 |
99.8 |
16 |
M36 |
170 |
|
400 |
426 |
670+2.0 |
386-1.0 |
525 |
4 |
473-0.76 |
474+0.76 |
5±0.5 |
66+0.74 |
170 |
48+0.62 |
432 |
484 |
12 |
142 |
137 |
16 |
M42 |
180 |
带有突出部和凹入部的钢制对头焊接法兰盘Pg=64Kg/cm2
图号:1标-2009

友情链接
服务范围
工业自动化产品专业代理,品质保证
技术领先,价格优势,报价迅速,产品全面
技术选型,产品报价,销售安装,工程售后,为您提供工业自动化一站式服务
自动化专业销售
Tel. 19925440503(微信同号) WhatsApp: +86 18576429229
联系工程师
扫码添加WhatsApp
